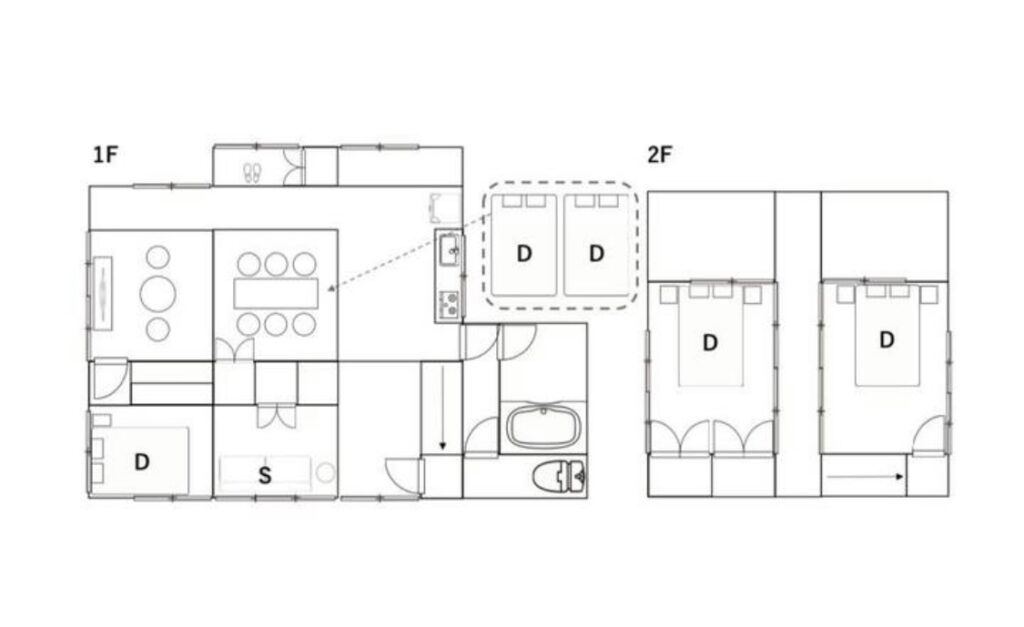
沖縄県国頭郡本部町にてなかなか便利株式会社が運営する120平米の最大11人宿泊可能な大型民泊Resort Villa N & N がオープンしました。ご予約、お問合せは07090221188中西まで
https://resort-villa-nn.crayonsite.com/p/2/





BLOG ブログ
BLOG
沖縄県国頭郡本部町にてなかなか便利株式会社が運営する120平米の最大11人宿泊可能な大型民泊Resort Villa N & N がオープンしました。ご予約、お問合せは07090221188中西まで
https://resort-villa-nn.crayonsite.com/p/2/




